Quel matériel
Modérateurs : ramses, Balajol, monteric, ametpierre, j2c
-
yanmarc
- Newbie

- Messages : 25
- Enregistré le : dim. janv. 15, 2012 16:54 pm
- Localisation : préfailles 44
Bonjour à tous
Actuellement j'ai un chauffage central au bois qui alimente 6 radiateurs, mais avec l'ECS électrique!
J'ai déjà eu une étude et un devis pour ECS et appoint de chauffage en solaire par une entreprise mais je souhaite réaliser mon installation et comander au groupement d'APPER
Je prévois pour l'instant 4 capteurs au-dessus du ballon. La longueur des tuyauteries ne dépassera pas 5 m. Cuivre ou inox je ne sais pas.
Le plancher chauffant est installé mais non raccordé. En sortie de chauffage c'est diamètre 22 puis 18 ensuite. J'ai besoin de conseil pour sélectionner le matériel: circulateurs, vannes 3 voies mélangeuses, raccords entre capteurs, sondes, clapets, régulation...
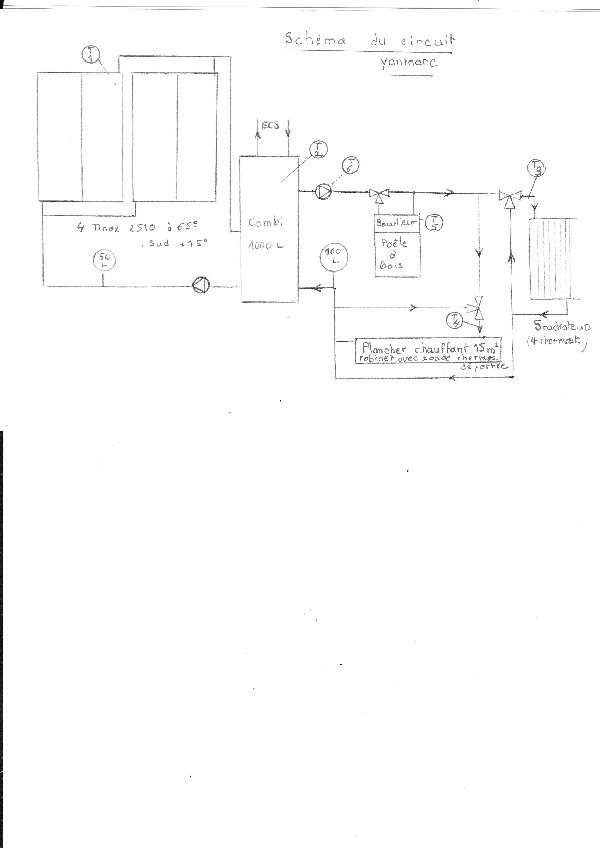
Je joins un croquis ; merci.
Actuellement j'ai un chauffage central au bois qui alimente 6 radiateurs, mais avec l'ECS électrique!
J'ai déjà eu une étude et un devis pour ECS et appoint de chauffage en solaire par une entreprise mais je souhaite réaliser mon installation et comander au groupement d'APPER
Je prévois pour l'instant 4 capteurs au-dessus du ballon. La longueur des tuyauteries ne dépassera pas 5 m. Cuivre ou inox je ne sais pas.
Le plancher chauffant est installé mais non raccordé. En sortie de chauffage c'est diamètre 22 puis 18 ensuite. J'ai besoin de conseil pour sélectionner le matériel: circulateurs, vannes 3 voies mélangeuses, raccords entre capteurs, sondes, clapets, régulation...
Je joins un croquis ; merci.
- remi.450
- Maitre Solaire

- Messages : 2589
- Enregistré le : lun. août 27, 2007 18:59 pm
- Localisation : St Jean de la Ruelle (45)
Bonjour,
Tu devrais regarder ce site pour voir le schéma hydraulique des circuits radiateur et plancher chauffant.
http://solaire.open-dream.com/
On ne peut envoyer directement l'eau qui sort du ballon dans le plancher car la température risque d'être trop élevée.
De plus il ne faut pas que le débit dans le bouilleur soit interrompu.
Conclusion c'est 3 circulateurs.
Concernant le refroidissement du ballon, il faut connaître les déperditions de l'habitation. Pour info : 1 degré de perdu dans un ballon de 1m3, c'est 1,16 kWh de soutiré.
Rémi
Tu devrais regarder ce site pour voir le schéma hydraulique des circuits radiateur et plancher chauffant.
http://solaire.open-dream.com/
On ne peut envoyer directement l'eau qui sort du ballon dans le plancher car la température risque d'être trop élevée.
De plus il ne faut pas que le débit dans le bouilleur soit interrompu.
Conclusion c'est 3 circulateurs.
Concernant le refroidissement du ballon, il faut connaître les déperditions de l'habitation. Pour info : 1 degré de perdu dans un ballon de 1m3, c'est 1,16 kWh de soutiré.
Rémi
-
yanmarc
- Newbie

- Messages : 25
- Enregistré le : dim. janv. 15, 2012 16:54 pm
- Localisation : préfailles 44
bonjour Rémi.
Si je comprends il faut un circulateur pour les radiateurs et un pour le plancher chauffant.Je pensais que les vannes3 voies mélangeuses feraient l'affare.Si l'eau du ballon est trop chaude pour le plancher chauffant on peut prendre l'eau moins chaude sur le retour avec la vanne 3 voies ou fermer ou stopper le circulateur si c'est encore trop chaud ?
Si je comprends il faut un circulateur pour les radiateurs et un pour le plancher chauffant.Je pensais que les vannes3 voies mélangeuses feraient l'affare.Si l'eau du ballon est trop chaude pour le plancher chauffant on peut prendre l'eau moins chaude sur le retour avec la vanne 3 voies ou fermer ou stopper le circulateur si c'est encore trop chaud ?
- Tarassac
- Expert Solaire

- Messages : 743
- Enregistré le : mer. avr. 29, 2009 10:58 am
- Localisation : Tarassac 34390
Bonjour,
Non, ce n'est pas à cause de la température ambiante qu'il ne faut pas d'eau trop chaude dans le plancher chauffant, mais juste que les matériaux du P.C ne supportent pas de température trop élévée!
Pour bien faire il te faudrai un circuit radiateur et un autre pour le plancher chauffant.
sur le mien, j'ai un peu triché, j'ai pris le plancher chauffant au bout de la ligne radiateur avec une vanne trois voies et un circulateur.
Hervé
Non, ce n'est pas à cause de la température ambiante qu'il ne faut pas d'eau trop chaude dans le plancher chauffant, mais juste que les matériaux du P.C ne supportent pas de température trop élévée!
Pour bien faire il te faudrai un circuit radiateur et un autre pour le plancher chauffant.
sur le mien, j'ai un peu triché, j'ai pris le plancher chauffant au bout de la ligne radiateur avec une vanne trois voies et un circulateur.
Hervé
- remi.450
- Maitre Solaire

- Messages : 2589
- Enregistré le : lun. août 27, 2007 18:59 pm
- Localisation : St Jean de la Ruelle (45)
Bonjour,
Rien ne vaut une animation pour comprendre l'hydraulique.
http://www.techno-froid.com/index.php?o ... &Itemid=32
Animation très bien faites.
Il suffit de cliquer sur les liens "montage en ....."
Rémi
Rien ne vaut une animation pour comprendre l'hydraulique.
http://www.techno-froid.com/index.php?o ... &Itemid=32
Animation très bien faites.
Il suffit de cliquer sur les liens "montage en ....."
Rémi
-
domwood
- Maitre Solaire

- Messages : 2517
- Enregistré le : ven. avr. 02, 2010 17:47 pm
- Localisation : Bretagne
bonjour
on peut alimenter le plancher chauffant à travers une vanne thermostatique 43°C (genre vta de ESBE)
testé chez moi sur une cuisinière bois et maintenant sur une chaudière bois raccordée à un tampon. la thermostatique mélange avec le retour pour limiter à 43 °C dans la dalle. hyper simple, économique, schémas dans les docs ESBE pour configurations radias plus plancher chauffant.
on peut alimenter le plancher chauffant à travers une vanne thermostatique 43°C (genre vta de ESBE)
testé chez moi sur une cuisinière bois et maintenant sur une chaudière bois raccordée à un tampon. la thermostatique mélange avec le retour pour limiter à 43 °C dans la dalle. hyper simple, économique, schémas dans les docs ESBE pour configurations radias plus plancher chauffant.
-
domwood
- Maitre Solaire

- Messages : 2517
- Enregistré le : ven. avr. 02, 2010 17:47 pm
- Localisation : Bretagne
bonjour
j'ai un système plutôt simple
la vanne est réglée une fois pour toutes.
un circu et une vta (320 ? à vérifier)
pour que mon circu se mette en route, il faut thermostat ambiance fermé (demande de chauffage), thermostat dans le ballon fermé (présence effective d'eau chaude dans mon tampon) et thermostat sécurité fermé (en cas d'avarie pour ne pas envoyer d'eau trop chaude) tous ces thermostats sont de récup' à bulbe.
voir page 13 pour des exemples de mise en oeuvre chauffage
http://infoweb.esbe.se/files/55668/Ther ... 3_A_LR.pdf
voir page 6 de ce doc pour les usages et les températures des vannes
j'ai un système plutôt simple
la vanne est réglée une fois pour toutes.
un circu et une vta (320 ? à vérifier)
pour que mon circu se mette en route, il faut thermostat ambiance fermé (demande de chauffage), thermostat dans le ballon fermé (présence effective d'eau chaude dans mon tampon) et thermostat sécurité fermé (en cas d'avarie pour ne pas envoyer d'eau trop chaude) tous ces thermostats sont de récup' à bulbe.
voir page 13 pour des exemples de mise en oeuvre chauffage
http://infoweb.esbe.se/files/55668/Ther ... 3_A_LR.pdf
voir page 6 de ce doc pour les usages et les températures des vannes
-
Guinebault
- Apprenti Solaire

- Messages : 339
- Enregistré le : dim. déc. 25, 2005 18:37 pm
- Localisation : 74 Allinges
Bonjour,
Et pourquoi pas un régulateur de chauffage pilotant une vanne trois voies en fonction des conditions extérieures pour utiliser l'énergie au mieux et sans surchauffe.
Daniel.
http://www.leboncoin.fr/bricolage/288371866.htm?ca=22_s
http://www.leboncoin.fr/bricolage/288095949.htm?ca=22_s
http://www.leboncoin.fr/bricolage/287950378.htm?ca=22_s
http://www.leboncoin.fr/bricolage/287821615.htm?ca=22_s
http://www.leboncoin.fr/bricolage/287599624.htm?ca=22_s
Et pourquoi pas un régulateur de chauffage pilotant une vanne trois voies en fonction des conditions extérieures pour utiliser l'énergie au mieux et sans surchauffe.
Daniel.
http://www.leboncoin.fr/bricolage/288371866.htm?ca=22_s
http://www.leboncoin.fr/bricolage/288095949.htm?ca=22_s
http://www.leboncoin.fr/bricolage/287950378.htm?ca=22_s
http://www.leboncoin.fr/bricolage/287821615.htm?ca=22_s
http://www.leboncoin.fr/bricolage/287599624.htm?ca=22_s
- remi.450
- Maitre Solaire

- Messages : 2589
- Enregistré le : lun. août 27, 2007 18:59 pm
- Localisation : St Jean de la Ruelle (45)
Cette annonce à 5€ il faut pas la louper.
http://www.leboncoin.fr/bricolage/287821615.htm?ca=22_s
http://www.leboncoin.fr/bricolage/287821615.htm?ca=22_s