[projet] tunnels à galets et capteur à air chaud
Modérateurs : ramses, Balajol, monteric, ametpierre, j2c
- ISABEL
- Etudiant Solaire

- Messages : 259
- Enregistré le : sam. janv. 30, 2010 14:02 pm
- Localisation : VILLEDIEU la Blouère 49450
Re: [projet] tunnels à galets et capteur à air chaud
Une belle réalisation , qui a du , en son temps , produire quelques calories gratuites ! Je suis impressionné par sa taille ; les matériaux utilisés à l'époque sont dignes des précurseurs, qui ont tentés et testés à tout va pour faire vivre la technologie aérothermique ! Un document rare , à conserver .
7 capteurs aérothermiques verticaux de 2 m2, absorbeurs en ardoises d'Anjou , clapets d'air chaud automatiques à vérins Vernet
-
herakles
- Newbie

- Messages : 28
- Enregistré le : lun. mars 10, 2008 11:12 am
- Localisation : toulouse (31)
Re: [projet] tunnels à galets et capteur à air chaud
Bonjour à tous ,
Quelques photos
remise en état des capteurs 6 ans après ( polycarbonate jauni et fendillé )
l'isolant laine de verre a été remplacé par du firerock 40 mm , plus résistant à la chaleur
une coupe sur les caniveaux d'amenée d'air et de retour vers le ventilo , section environ 900cm2 ,(équivalent D=32 cm) V de l'air à proximité du ventilo =2.31 m/s..
Avec arrivée d'air frais pile sur le moteur du ventilateur pour le refroidir .
@ Axeau ,
D160 ext = 152 à 154 mm int , ca fait varier les PdC dans les grandes vitesses .
tu peux mettre deux 160 côte à côte au lieu d'un unique 200 ?
120mmCE de pression , bigre !!! = 1200 Pa !!!!peu de ventilos sont capables de telles pressions à part ceux destinés à l'industrie , bruyants...
Merci Guy, j'apprécie tes commentaires , ca fait chaud au cœur
Aujourd'hui je file au terrain assister au coulage de béton des fondations de notre future maison solaire...
Quelques photos
remise en état des capteurs 6 ans après ( polycarbonate jauni et fendillé )
l'isolant laine de verre a été remplacé par du firerock 40 mm , plus résistant à la chaleur
une coupe sur les caniveaux d'amenée d'air et de retour vers le ventilo , section environ 900cm2 ,(équivalent D=32 cm) V de l'air à proximité du ventilo =2.31 m/s..
Avec arrivée d'air frais pile sur le moteur du ventilateur pour le refroidir .
@ Axeau ,
D160 ext = 152 à 154 mm int , ca fait varier les PdC dans les grandes vitesses .
tu peux mettre deux 160 côte à côte au lieu d'un unique 200 ?
120mmCE de pression , bigre !!! = 1200 Pa !!!!peu de ventilos sont capables de telles pressions à part ceux destinés à l'industrie , bruyants...
Merci Guy, j'apprécie tes commentaires , ca fait chaud au cœur
Aujourd'hui je file au terrain assister au coulage de béton des fondations de notre future maison solaire...
-
herakles
- Newbie

- Messages : 28
- Enregistré le : lun. mars 10, 2008 11:12 am
- Localisation : toulouse (31)
Re: [projet] tunnels à galets et capteur à air chaud
oups !! les photos !!!
-
herakles
- Newbie

- Messages : 28
- Enregistré le : lun. mars 10, 2008 11:12 am
- Localisation : toulouse (31)
Re: [projet] tunnels à galets et capteur à air chaud
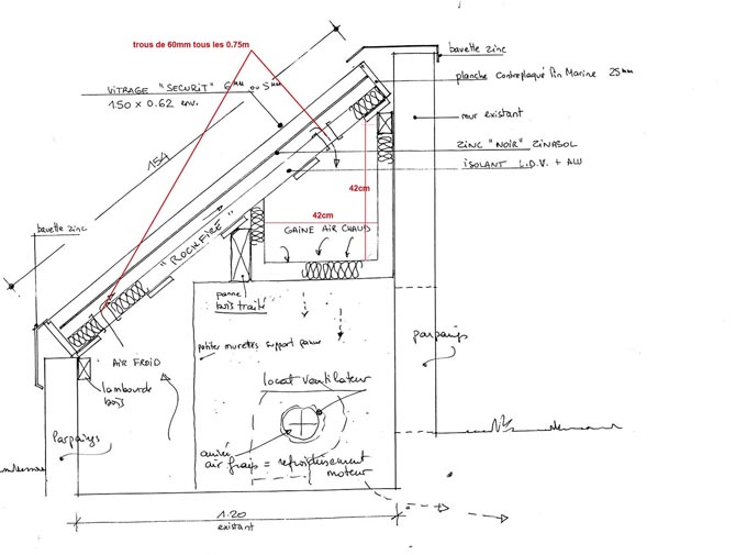
Une esquisse de mon futur capteur , avec ardoises , si Guy le permet
le support des ardoises pourrait être une plaque en acier nervuré de type Supportsol qui donnera la rigidité au capteur .
Reste à voir les problèmes de dilatation dans un module de 2 x 1.25 m
inch'Allah !
le support des ardoises pourrait être une plaque en acier nervuré de type Supportsol qui donnera la rigidité au capteur .
Reste à voir les problèmes de dilatation dans un module de 2 x 1.25 m
inch'Allah !
- ISABEL
- Etudiant Solaire

- Messages : 259
- Enregistré le : sam. janv. 30, 2010 14:02 pm
- Localisation : VILLEDIEU la Blouère 49450
Re: [projet] tunnels à galets et capteur à air chaud
bonjour , content de voir ces derniers temps le capteur à air prendre un peu plus le devant de la scène ! Ton expérience d'architecte , vécue au fil du temps , nous laisse présager une réalisation exemplaire , profitant des essais des uns et des autres ! L'ardoise devrait remplir son rôle , en restant fiable , esthétique , et apportera un grain d'inertie parfois appréciable ! Le seul inconvénient que je vois à ton chantier ...................................c'est qu'il te faudra rédiger un méga compte rendu , à la fin des travaux , pour étoffer un peu plus ( et même beaucoup ) notre rubrique aérothermique ! Bien à toi , et bon courage . Guy
je note que nous aurons quasiment la même surface vitrée pour nos systèmes respectifs ! Le Soleil n'a plus qu'à bien se tenir !
je note que nous aurons quasiment la même surface vitrée pour nos systèmes respectifs ! Le Soleil n'a plus qu'à bien se tenir !
7 capteurs aérothermiques verticaux de 2 m2, absorbeurs en ardoises d'Anjou , clapets d'air chaud automatiques à vérins Vernet
- tigrou
- Technicien Solaire

- Messages : 426
- Enregistré le : mar. janv. 03, 2006 9:43 am
- Localisation : basse-rentgen/lorraine/57/France, ex luxembourg, ex auvergne
Re: [projet] tunnels à galets et capteur à air chaud
j'attend avec impatience le mega compte rendu
"La théorie, c'est quand on sait tout et que rien ne fonctionne. La pratique, c'est quand tout fonctionne et que personne ne sait pourquoi." Albert Einstein
"le mieux est de trouver le bon compromis entre les deux" tigrou moi-meme
"le mieux est de trouver le bon compromis entre les deux" tigrou moi-meme
Re: [projet] tunnels à galets et capteur à air chaud
salut aux preux expérimenteurs,
je suis parti voir les planchers collaborants, j'en ai vu deux modèles à BD. un avec une épaisseur de 4 et l'autre avec 7cm, j'ai pris celui de 4cm qui a plus de nervures également et 7cm de haut ça fait beaucoup pour ma hauteur disponible qui est réduite.
pour moi, le cadre sera fait avec des chevrons porteurs en douglas 140mm*60mm. le fond vissé par en dessous avec un panneau ou des planches j'hésite encore (il faudrait que je vois ce que donne de l'isorel de steico en 19mm). puis du liège 5cm puis le plancher puis les ardoises puis le vide d'air puis al vitre avec une feuillure.
si tout va bien, je commande mon bois samedi donc cet été j'y crois!
je suis parti voir les planchers collaborants, j'en ai vu deux modèles à BD. un avec une épaisseur de 4 et l'autre avec 7cm, j'ai pris celui de 4cm qui a plus de nervures également et 7cm de haut ça fait beaucoup pour ma hauteur disponible qui est réduite.
pour moi, le cadre sera fait avec des chevrons porteurs en douglas 140mm*60mm. le fond vissé par en dessous avec un panneau ou des planches j'hésite encore (il faudrait que je vois ce que donne de l'isorel de steico en 19mm). puis du liège 5cm puis le plancher puis les ardoises puis le vide d'air puis al vitre avec une feuillure.
si tout va bien, je commande mon bois samedi donc cet été j'y crois!
- ISABEL
- Etudiant Solaire

- Messages : 259
- Enregistré le : sam. janv. 30, 2010 14:02 pm
- Localisation : VILLEDIEU la Blouère 49450
Re: [projet] tunnels à galets et capteur à air chaud
Bonjour , hardi les gars , le solaire à air ça marche aussi !
7 capteurs aérothermiques verticaux de 2 m2, absorbeurs en ardoises d'Anjou , clapets d'air chaud automatiques à vérins Vernet
- lebritish
- Maitre Solaire

- Messages : 2846
- Enregistré le : sam. mai 24, 2008 23:18 pm
- Localisation : Robiac (30)
- Contact :
Re: [projet] tunnels à galets et capteur à air chaud
Bonjour aux "pointures" du solaire a airdomwood a écrit :bonjour
je suivais la discussion de très loin jusqu'à présent mais ça va peut-être changer.
je vais avoir un nouveau local à créer et à chauffer et il se prêterait sans doute bien à un système hypocauste. (j'ai au moins 50cm à rattrapper au dessus des fondations).
comme plusieurs ont l'air pointus sur ce fil, pourriez-vous me dire quelle différence ça fait d'avoir des capteurs deux ou trois mètres plus hauts que les cheminements qui collectent et emmagasinent la chaleur (brique ou galets). ou plus clairement,faut il une ventilation beaucoup plus costaude quand les capteurs sont en toiture plutôt que au sol.
deuxième point, si vous aviez quelques liens qui font référence, on serait sans doute plusieurs bien intéressés à les découvrir.
j'ai navigué pas mal par le passé avec google mais on a vite fait de se disperser.
merci pour vos interventions ici
Je remonte cette petite question de Domwood qui s'est perdue ds cette discussion fleuve, ca serait pas mal de lui faire profiter de vos expériences
Merki !!!
-
AXEAU
- Stagiaire Solaire

- Messages : 73
- Enregistré le : mar. déc. 22, 2009 21:16 pm
- Localisation : AIX EN DIOIS 26150
Re: [projet] tunnels à galets et capteur à air chaud
Bonjour,domwood dans mon cas il y a 5.3m du haut de capteur au fond de tunnel, ce n'est pas un problème, il faut juste bien adapter la section du conduit au débit souhaité et là je fais une belle démonstration de ce qui ne marche pas.
J' ai oublié de préciser que pour le chauffage de mon habitation j' ai installé une réserve de 1500L qui attend ses panneaux qui seront à coté de celui à air. Je veux décharger le surplus dans les tunnels . Il me faut définir la surface des capteurs (je pense entre 12 et 16 m2). Ensuite en fonction du débit d' air obtenu dans le capteur à air faire le complément en parallèle avec cette décharge pour obtenir le débit désiré dans les tunnels.
jlg
J' ai oublié de préciser que pour le chauffage de mon habitation j' ai installé une réserve de 1500L qui attend ses panneaux qui seront à coté de celui à air. Je veux décharger le surplus dans les tunnels . Il me faut définir la surface des capteurs (je pense entre 12 et 16 m2). Ensuite en fonction du débit d' air obtenu dans le capteur à air faire le complément en parallèle avec cette décharge pour obtenir le débit désiré dans les tunnels.
jlg
-
domwood
- Maitre Solaire

- Messages : 2528
- Enregistré le : ven. avr. 02, 2010 17:47 pm
- Localisation : Bretagne
Re: [projet] tunnels à galets et capteur à air chaud
Bonjour axeau,
En fait j'ai du mal à évaluer les choses tant que je ne les ai pas testées. J'avais vu l'expérience de ptitpain et thermosiphon et hypocauste avaient fait "tilt" chez moi. Si je comprends bien, les pertes de charge à vaincre sont surtout dues aux cheminements de l'air. De contrer la tendance qu'a l'air chaud à monter naturellement étant négligeable.
Je m'occupe moi aussi ces temps-ci d'une cuve de 1500 litres pour du capteur eau et je regarde aussi les possibilités de décharge dans du stock "secondaire". Briques, terre crue, fouille de géothermie horizontale, tank à lait...la configuration de travaux est différente chez moi.
Aurais-tu trois ou deux ou trois bookmarks à partager ? des sites sur lesquels tu retournerait régulièrement depuis le début.
Les discussions de forum, on les trouve facilement, mais quand on découvre un site comme celui d'Hevé Silve, par exemple, on peut dire qu'on gagne du temps.
Je pense que ça va décoller pour le concept à air. Si Apper en devient un pilier comme pour le thermique eau, ça promet de beaux échanges.
Je profite aussi d'être sur ce fil pour prévenir que plusieurs discussions gagneraient à être poursuivies dans la rubrique. Peut-être y jeter un oeil, à l'occasion ?
Merci pour tous vos échanges (ici et ailleurs)
En fait j'ai du mal à évaluer les choses tant que je ne les ai pas testées. J'avais vu l'expérience de ptitpain et thermosiphon et hypocauste avaient fait "tilt" chez moi. Si je comprends bien, les pertes de charge à vaincre sont surtout dues aux cheminements de l'air. De contrer la tendance qu'a l'air chaud à monter naturellement étant négligeable.
Je m'occupe moi aussi ces temps-ci d'une cuve de 1500 litres pour du capteur eau et je regarde aussi les possibilités de décharge dans du stock "secondaire". Briques, terre crue, fouille de géothermie horizontale, tank à lait...la configuration de travaux est différente chez moi.
Aurais-tu trois ou deux ou trois bookmarks à partager ? des sites sur lesquels tu retournerait régulièrement depuis le début.
Les discussions de forum, on les trouve facilement, mais quand on découvre un site comme celui d'Hevé Silve, par exemple, on peut dire qu'on gagne du temps.
Je pense que ça va décoller pour le concept à air. Si Apper en devient un pilier comme pour le thermique eau, ça promet de beaux échanges.
Je profite aussi d'être sur ce fil pour prévenir que plusieurs discussions gagneraient à être poursuivies dans la rubrique. Peut-être y jeter un oeil, à l'occasion ?
Merci pour tous vos échanges (ici et ailleurs)
https://webold.apper-solaire.org/
- ISABEL
- Etudiant Solaire

- Messages : 259
- Enregistré le : sam. janv. 30, 2010 14:02 pm
- Localisation : VILLEDIEU la Blouère 49450
Re: [projet] tunnels à galets et capteur à air chaud
Bonjour , bien qu'exploitant de nombreux capteurs à air , je suis quasiment ignorant en matière de débit , vitesse ou rendement des dits capteurs ! J'ai la chance d'avoir pu les monter en vertical , plein Sud , derrière les pièces à chauffer ! 30 cm de conduit , et c'est tout ! Point de stockage bien entendu , puisque la maison a été construite sur une dalle béton , certes isolée , mais inutilisable sans sous-sol !Par contre , je suivrais avec grand intérêt ce sujet , et ne souhaite intervenir que sur des points précis que je maitrise mieux ! Le solaire à air décolle , et on doit s'en réjouir , car longtemps il a été quasiment ignoré , même dénigré parfois par des "spécialistes " qui ne juraient que par le thermique à eau , avec son usine à gaz de plomberie ( sans moquerie !). Considérons donc l'aérothermie comme un appoint , fiable , simple et économique , quasiment sans entretien ! A suivre . Cordialement Guy
7 capteurs aérothermiques verticaux de 2 m2, absorbeurs en ardoises d'Anjou , clapets d'air chaud automatiques à vérins Vernet
- AD 44
- Maitre Solaire

- Messages : 1389
- Enregistré le : mer. janv. 11, 2012 12:39 pm
- Localisation : Divatte sur Loire
Re: [projet] tunnels à galets et capteur à air chaud
Bonjour,
(qui me parait fort instructif, sur les débits entre autres...) : https://hal.archives-ouvertes.fr/jpa-00245493/document
Me concernant, je n'ai pas encore appliqué la théorie , pour le moment je ne fait que m'appuyer sur des documents (tels que celui du dessus) et sur les discussions animées par des spécialistes tels qu' Héraklès ou Guy dont les retours d'expérience sont précieux.
A titre perso, je me nourri de tout cela pour mettre au point mon petit système (qui sera d'une surface tout à fait modeste).
La question ne m'est pas adressée , mais je ne peux résister à l'idée de te donner ce liendomwood a écrit :Aurais-tu trois ou deux ou trois bookmarks à partager ? des sites sur lesquels tu retournerait régulièrement depuis le début.
Les discussions de forum, on les trouve facilement, mais quand on découvre un site comme celui d'Hevé Silve, par exemple, on peut dire qu'on gagne du temps.
Me concernant, je n'ai pas encore appliqué la théorie , pour le moment je ne fait que m'appuyer sur des documents (tels que celui du dessus) et sur les discussions animées par des spécialistes tels qu' Héraklès ou Guy dont les retours d'expérience sont précieux.
A titre perso, je me nourri de tout cela pour mettre au point mon petit système (qui sera d'une surface tout à fait modeste).
- guy delsol
- Maitre Solaire

- Messages : 1311
- Enregistré le : mer. juil. 30, 2008 18:16 pm
- Localisation : rousson 30
Re: [projet] tunnels à galets et capteur à air chaud
Bonjour.
Bien que n'ayant pas son livre, je suis avec intérêt les travaux et explications de Guy Isabel.
Depuis 35 ans....je tourne autour du sujet des capteurs à air...sans trouver une solution pour ma maison..
J'ai l'expérience d'amis, qui à la même époque avaient fait un "doublage" de murs sud avec des cadres et vitrages, à 5-10 cm de leur mur de briques pleines.
Ca chauffe ...(sans circuit de ventilation).
MAIS...!!! l'été, leur maison est invivable, malgré la couche de blanc sur les vitres..!!!
Donc pas idéal pour ma part...
(voir mon avatar) J'ai donc contourné le problème, en vitrant mon balcon, à 1,3 m de mes murs.
Qui me donne une masse 20 m x 1,30 x 2,80 de haut, d'air bien chaud, derrière les vitres.
Pas rare l'hiver d'avoir 30° sur le balcon, avec 5-10° dehors.
Le soleil pénètre dans presque tout le séjour et chambres sud.
C'est pas si mal, et me satisfait ...quoique...
MAIS...!!! Les murs sont bien isolés, (Briques G11 de 27, + 5 cm de polyuréthane en intérieur.), et même avec portes et fenêtres ouvertes, le chaud ne rentre pas..
J'ai même essayé avec un ventilateur....le "courant d'air " refroidit plus qu'il ne chauffe...
J'ai aussi pensé percer les murs, avec un petit ventilo...mais pas convaincu, et problème d'isolation...
L'été, le toit en "casquette" de 1,60 m fait de l'ombre, toutes les vitres coulissent....plus stores d'ombrage...
Bref 35 ans que ça dure, et ne vois toujours pas comment améliorer.. sans gros travaux.
Juste pour vous faire part de mon dilemme...
Idées ou commentaires bien venus.
Désolé de parasiter le sujet, mais c'est bien dans la même ligne.
( les modos peuvent ouvrir un autre post s'ils le jugent utile.
Bien cordialement.
Guy.
Bien que n'ayant pas son livre, je suis avec intérêt les travaux et explications de Guy Isabel.
Depuis 35 ans....je tourne autour du sujet des capteurs à air...sans trouver une solution pour ma maison..
J'ai l'expérience d'amis, qui à la même époque avaient fait un "doublage" de murs sud avec des cadres et vitrages, à 5-10 cm de leur mur de briques pleines.
Ca chauffe ...(sans circuit de ventilation).
MAIS...!!! l'été, leur maison est invivable, malgré la couche de blanc sur les vitres..!!!
Donc pas idéal pour ma part...
(voir mon avatar) J'ai donc contourné le problème, en vitrant mon balcon, à 1,3 m de mes murs.
Qui me donne une masse 20 m x 1,30 x 2,80 de haut, d'air bien chaud, derrière les vitres.
Pas rare l'hiver d'avoir 30° sur le balcon, avec 5-10° dehors.
Le soleil pénètre dans presque tout le séjour et chambres sud.
C'est pas si mal, et me satisfait ...quoique...
MAIS...!!! Les murs sont bien isolés, (Briques G11 de 27, + 5 cm de polyuréthane en intérieur.), et même avec portes et fenêtres ouvertes, le chaud ne rentre pas..
J'ai même essayé avec un ventilateur....le "courant d'air " refroidit plus qu'il ne chauffe...
J'ai aussi pensé percer les murs, avec un petit ventilo...mais pas convaincu, et problème d'isolation...
L'été, le toit en "casquette" de 1,60 m fait de l'ombre, toutes les vitres coulissent....plus stores d'ombrage...
Bref 35 ans que ça dure, et ne vois toujours pas comment améliorer.. sans gros travaux.
Juste pour vous faire part de mon dilemme...
Idées ou commentaires bien venus.
Désolé de parasiter le sujet, mais c'est bien dans la même ligne.
( les modos peuvent ouvrir un autre post s'ils le jugent utile.
Bien cordialement.
Guy.
-
pf26
- Etudiant Solaire

- Messages : 222
- Enregistré le : mer. juin 02, 2010 11:45 am
- Localisation : Aurel (26)
- Contact :
Re: [projet] tunnels à galets et capteur à air chaud
Bonjour,
Pour avoir travaillé dans les années 90 avec l'un des auteurs du document (écrit en 1986) proposé par AD44, je constate qu'il n'a rapidement plus fait que des systèmes solaires hydrauliques..
Pour le solaire à air, il faut être bien conscient que véhiculer 1kWh avec 20°C d'écart de température (air à 40°C pour chauffer une maison à 20), cela demande 142m3 d'air, là où 43 litres d'eau suffisent à assurer le même transfert de chaleur. (0.34Wh/m3.°C pour l'air, et 1160Wh/m3.°C pour l'eau)
Certaines applications restent probablement possibles, mais il faut bien calculer les sections de gaine et leur isolation, les pertes de charge.. pour éviter un ventilateur trop gourmand et ne pas perdre la chaleur dans son trajet.
Pour les systèmes directs avec un mur vertical Sud et des clapets, je pense que ça peut marcher, mais comment évaluer les pertes durant les périodes froides sans soleil (quelle est l'isolation et l'étanchéité réelle des clapets ??) - pour des maisons très bien isolées, ça me semble risqué.
Pierre
Pour avoir travaillé dans les années 90 avec l'un des auteurs du document (écrit en 1986) proposé par AD44, je constate qu'il n'a rapidement plus fait que des systèmes solaires hydrauliques..
Pour le solaire à air, il faut être bien conscient que véhiculer 1kWh avec 20°C d'écart de température (air à 40°C pour chauffer une maison à 20), cela demande 142m3 d'air, là où 43 litres d'eau suffisent à assurer le même transfert de chaleur. (0.34Wh/m3.°C pour l'air, et 1160Wh/m3.°C pour l'eau)
Certaines applications restent probablement possibles, mais il faut bien calculer les sections de gaine et leur isolation, les pertes de charge.. pour éviter un ventilateur trop gourmand et ne pas perdre la chaleur dans son trajet.
Pour les systèmes directs avec un mur vertical Sud et des clapets, je pense que ça peut marcher, mais comment évaluer les pertes durant les périodes froides sans soleil (quelle est l'isolation et l'étanchéité réelle des clapets ??) - pour des maisons très bien isolées, ça me semble risqué.
Pierre