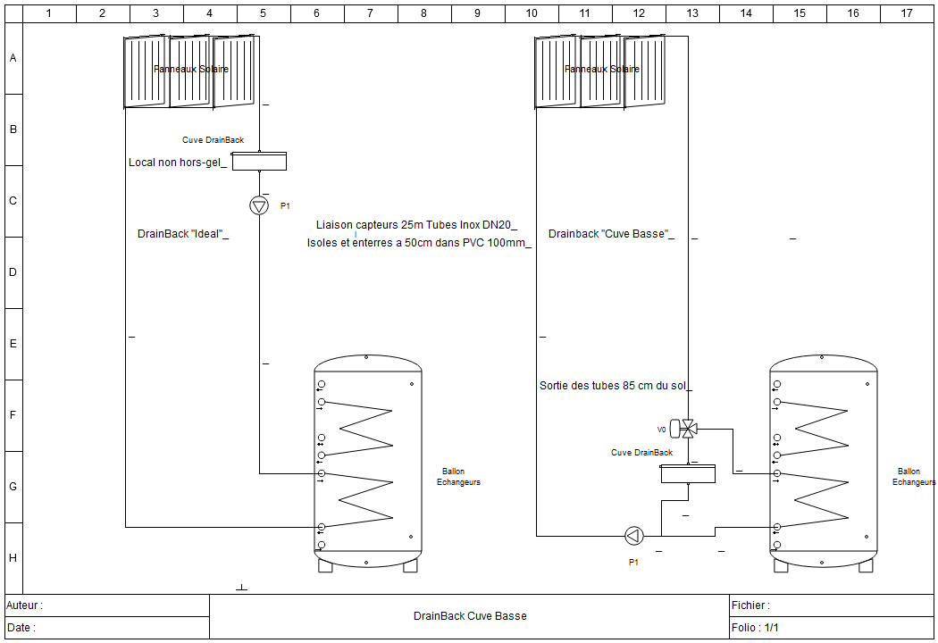
Je me risque a un premier schéma afin de vérifier auprès de vous si une solution DrainBack avec une cuve basse est viable ou non.
En gros, je voudrais mettre en œuvre une solution DrainBack pour ma future installation solaire mais je me heurte a deux problèmes de taille :
- le local (garage) sur le toit duquel seront posés les capteurs, et qui pourrait avantageusement accueillir la cuve de vidange et la pompe n’est pas hors-gel
les 25 m de tubes de liaison DN 20 Inox, isolés et enterres a 50 cm de profondeur dans un tubes PVC de 100mm, débouchent a une hauteur de 85 cm seulement dans le local chaufferie
Donc, l’idée du schéma que je soumet a votre expertise est la suivante :
- dans la phase de démarrage, la vanne V0 dirige le fluide en provenance des capteurs directement a la cuve de vidange.
Lorsque la circulation est établie, la vanne V0 dirige le fluide vers l’échangeur du ballon
Lors de l’arrêt, la vanne V0 est de nouveau passante vers la cuve
Sans doute trop simple ?
Merci par avance pour vos conseils.
Cordialement.


