[projet] solaire à air
Modérateurs : ramses, Balajol, monteric, ametpierre, j2c
- ISABEL
- Etudiant Solaire

- Messages : 259
- Enregistré le : sam. janv. 30, 2010 14:02 pm
- Localisation : VILLEDIEU la Blouère 49450
[projet] solaire à air
bonjour à tous ,
Soleil généreux cet automne en Anjou , capteurs opérationnels et efficaces, trop même certains jours , reste à installer la gestion électronique de la trappe haute et la vitesse variable sur le ventilateur bas . A suivre
En attendant , deux petites images .... Cordialement . ISABEL
Soleil généreux cet automne en Anjou , capteurs opérationnels et efficaces, trop même certains jours , reste à installer la gestion électronique de la trappe haute et la vitesse variable sur le ventilateur bas . A suivre
En attendant , deux petites images .... Cordialement . ISABEL
7 capteurs aérothermiques verticaux de 2 m2, absorbeurs en ardoises d'Anjou , clapets d'air chaud automatiques à vérins Vernet
- Balajol
- Modérateur

- Messages : 2474
- Enregistré le : dim. avr. 03, 2011 23:27 pm
- Localisation : Saint-OMER 62
Bonjour,
Cela donnera surement des idées à ceux qui ne veulent pas se lancer dans la "Plomberie".
Bonne continuation
Cordialement
Bertrand
Cela donnera surement des idées à ceux qui ne veulent pas se lancer dans la "Plomberie".
Bonne continuation
Cordialement
Bertrand
-6 m2 en auto-vidange (Circuit Fermé, eau pure sans glycol), Capteurs sous polycarbonate 16 mm (toiture local)
-9 m2 WEISHAUPT et ballon 1000L circuit pressurisé glycolé ; 2 Solareg Genius II; Domoticz
Compte rendu de mon installation ici(1er champ)
-9 m2 WEISHAUPT et ballon 1000L circuit pressurisé glycolé ; 2 Solareg Genius II; Domoticz
Compte rendu de mon installation ici(1er champ)
-
jacques33
- Etudiant Solaire

- Messages : 158
- Enregistré le : ven. oct. 10, 2008 21:12 pm
- Localisation : Saint Laurent Médoc 33
Bonjour,
Oui, moi aussi, j'aimerais avoir plus de détails.
En effet, j'ai construit, il y a deux ans, une maison bioclimatique et j'avais prévu 6m2 de mur trombe. Il s'agit d'un mur plein sud maçonné en parpaing creux à l'envers remplis de sable pour en augmenter l'inertie. Mais pour l'instant, ce mur a été recouvert par l'extérieur de 16cm d'isolant, comme tout le reste de la maison car je m'était dit que je ferais ça dans quelques années.
L'idée de faire ça en ardoise semble très esthétique et m'a séduit tout particulièrement.
En espérant pouvoir en lire plus
Jacques
Oui, moi aussi, j'aimerais avoir plus de détails.
En effet, j'ai construit, il y a deux ans, une maison bioclimatique et j'avais prévu 6m2 de mur trombe. Il s'agit d'un mur plein sud maçonné en parpaing creux à l'envers remplis de sable pour en augmenter l'inertie. Mais pour l'instant, ce mur a été recouvert par l'extérieur de 16cm d'isolant, comme tout le reste de la maison car je m'était dit que je ferais ça dans quelques années.
L'idée de faire ça en ardoise semble très esthétique et m'a séduit tout particulièrement.
En espérant pouvoir en lire plus
Jacques
- ISABEL
- Etudiant Solaire

- Messages : 259
- Enregistré le : sam. janv. 30, 2010 14:02 pm
- Localisation : VILLEDIEU la Blouère 49450
bonjour,
Il n'y a en fait pas chose à dire à propos de ces capteurs à air , verticaux , montés sur ma facade Sud. Une application banale du capteur plan qui exploite l'effet de serre bien connu ...en hiver , dans un absorbeur certes un peu particulier : de fines ardoises sous lesquelles on devine un réseau de chicanes pour laisser à l'air le temps de récupérer la forte chaleur accumulée dans le minéral , noir à l'état naturel ce qui évite bien des émanations ! La position verticale solutionne presque automatiquement la surchauffe estivale , et de toute manière un clapet supérieur extérieur est prévu à cet effet .Un petit ventilateur très silencieux pousse l'air frais de la pièce dans le capteur et grâce à une variation de vitesse PWM permet de "règler" quelque peu la chaleur émise en partie haute . La thermo circulation naturelle peut suffire , ce qui permet dans ce cas à ce type de capteur d'être totalement passif . Aucune pièce mobile , pas de bruit , d'usure , d'entretien , pas de fuites , ni risques de gel , la neige ne le gêne pas non plus ! Je ne cherche pas un rendement élevé à tout prix , mais un appoint dans toutes mes pièces au Sud et même plus à l'arrière par de simples conduits en alu ( pour le chaud) et en PVC pour l'air frais ! Un jour de soleil normal , même par temps froid , on constate un gain de 4 à 5 degrés ambiant , du hors gel à tous les coups ! On dit 1° donne un gain de 7% ? Alors , pourquoi pas essayer .
L'automatisme installé gère une trappe métallique sur l'air chaud dès 25°C pour éviter une déperdition nocturne .
Je préciserais un peu plus tard un résumé documenté avec photos de ce chantier , qui devrait effectivement convenir à ceux qui sont allergiques à la plomberie ! Je reste à disposition pour tous détails utiles , et propose trois vues supplémentaires / Cordialement ISABEL
Il n'y a en fait pas chose à dire à propos de ces capteurs à air , verticaux , montés sur ma facade Sud. Une application banale du capteur plan qui exploite l'effet de serre bien connu ...en hiver , dans un absorbeur certes un peu particulier : de fines ardoises sous lesquelles on devine un réseau de chicanes pour laisser à l'air le temps de récupérer la forte chaleur accumulée dans le minéral , noir à l'état naturel ce qui évite bien des émanations ! La position verticale solutionne presque automatiquement la surchauffe estivale , et de toute manière un clapet supérieur extérieur est prévu à cet effet .Un petit ventilateur très silencieux pousse l'air frais de la pièce dans le capteur et grâce à une variation de vitesse PWM permet de "règler" quelque peu la chaleur émise en partie haute . La thermo circulation naturelle peut suffire , ce qui permet dans ce cas à ce type de capteur d'être totalement passif . Aucune pièce mobile , pas de bruit , d'usure , d'entretien , pas de fuites , ni risques de gel , la neige ne le gêne pas non plus ! Je ne cherche pas un rendement élevé à tout prix , mais un appoint dans toutes mes pièces au Sud et même plus à l'arrière par de simples conduits en alu ( pour le chaud) et en PVC pour l'air frais ! Un jour de soleil normal , même par temps froid , on constate un gain de 4 à 5 degrés ambiant , du hors gel à tous les coups ! On dit 1° donne un gain de 7% ? Alors , pourquoi pas essayer .
L'automatisme installé gère une trappe métallique sur l'air chaud dès 25°C pour éviter une déperdition nocturne .
Je préciserais un peu plus tard un résumé documenté avec photos de ce chantier , qui devrait effectivement convenir à ceux qui sont allergiques à la plomberie ! Je reste à disposition pour tous détails utiles , et propose trois vues supplémentaires / Cordialement ISABEL
7 capteurs aérothermiques verticaux de 2 m2, absorbeurs en ardoises d'Anjou , clapets d'air chaud automatiques à vérins Vernet
- ISABEL
- Etudiant Solaire

- Messages : 259
- Enregistré le : sam. janv. 30, 2010 14:02 pm
- Localisation : VILLEDIEU la Blouère 49450
bonjour ,
très classique , capteur de température , comparateur à hystérésis, transistor + relais , moto-réducteur + 2 fins de course . Voir section électroniciens du site par exemple .Trappe en métal car la température en sortie atteint parfois 85-90°C !
très classique , capteur de température , comparateur à hystérésis, transistor + relais , moto-réducteur + 2 fins de course . Voir section électroniciens du site par exemple .Trappe en métal car la température en sortie atteint parfois 85-90°C !
7 capteurs aérothermiques verticaux de 2 m2, absorbeurs en ardoises d'Anjou , clapets d'air chaud automatiques à vérins Vernet
-
gigi
- Stagiaire Solaire

- Messages : 111
- Enregistré le : lun. juin 09, 2008 7:04 am
- Localisation : saint andiol (13)
Bonjour a tous
l’installation d'Isabel est très intéressante , asses simple surtout au niveau des capteurs a air ,je ne peux que le féliciter pour son ingéniosité et son travail soigné , moi au niveau du Système électronique et volet de décharge je n'ai pas encore tout compris, (je dis des fois en rigolant mon principal outils de travail était une pelle c'est en partie vrais ) je pense que avec un peu de temps je vais arrivé a saisir les détails et les subtilités de son installation . Je pense aussi que ce type d’installation pourrai être réalisée en doublon avec une autre installation thermique classique a liquide colporteur qui permettrai de restituer la nuit les calories quand le système a air serai au repos (je rêve peut-être un peu ).
Félicitation à ISABEL et bonne journée a tous les z'appériens
GIGI
l’installation d'Isabel est très intéressante , asses simple surtout au niveau des capteurs a air ,je ne peux que le féliciter pour son ingéniosité et son travail soigné , moi au niveau du Système électronique et volet de décharge je n'ai pas encore tout compris, (je dis des fois en rigolant mon principal outils de travail était une pelle c'est en partie vrais ) je pense que avec un peu de temps je vais arrivé a saisir les détails et les subtilités de son installation . Je pense aussi que ce type d’installation pourrai être réalisée en doublon avec une autre installation thermique classique a liquide colporteur qui permettrai de restituer la nuit les calories quand le système a air serai au repos (je rêve peut-être un peu ).
Félicitation à ISABEL et bonne journée a tous les z'appériens
GIGI
- ISABEL
- Etudiant Solaire

- Messages : 259
- Enregistré le : sam. janv. 30, 2010 14:02 pm
- Localisation : VILLEDIEU la Blouère 49450
bonjour, merci de ton courrier lucide ...et encourageant !
Le système du capteur à air , très simple dans son principe , doit être considéré comme un appoint ...mais dans la journée...et si le soleil est suffisamment présent . Il est , à mon avis , trop peu prisé , et c'est dommage à l'heure à tout un chacun cherche à réduire sa facture énergétique d'une manière écologique ! Sa simplicité , son dénuement presque puisque aucune pièce mobile n'est nécessaire, son faible coût le met à la portée d'un bricoleur même moyen ; son auto-régulation été /hiver due à sa position verticale se joue des aléas climatiques , son entretien est quasi nul , et même sans gestion électronique , il est facile et rentable de l'exploiter en fermant le soir une trappe manuellement ! Si la course au rendement n'est pas la priorité , il peut s'agir là d'une application solaire à ne pas négliger !
C'est mon avis ...et je le partage ! Cordialement ISABEL
Le système du capteur à air , très simple dans son principe , doit être considéré comme un appoint ...mais dans la journée...et si le soleil est suffisamment présent . Il est , à mon avis , trop peu prisé , et c'est dommage à l'heure à tout un chacun cherche à réduire sa facture énergétique d'une manière écologique ! Sa simplicité , son dénuement presque puisque aucune pièce mobile n'est nécessaire, son faible coût le met à la portée d'un bricoleur même moyen ; son auto-régulation été /hiver due à sa position verticale se joue des aléas climatiques , son entretien est quasi nul , et même sans gestion électronique , il est facile et rentable de l'exploiter en fermant le soir une trappe manuellement ! Si la course au rendement n'est pas la priorité , il peut s'agir là d'une application solaire à ne pas négliger !
C'est mon avis ...et je le partage ! Cordialement ISABEL
7 capteurs aérothermiques verticaux de 2 m2, absorbeurs en ardoises d'Anjou , clapets d'air chaud automatiques à vérins Vernet
- Balajol
- Modérateur

- Messages : 2474
- Enregistré le : dim. avr. 03, 2011 23:27 pm
- Localisation : Saint-OMER 62
Bonjour à Tous,
ISABEL, tu as grandement raison de le partager
Ca n'est pas nous qui allons nous en plaindre.
La diversité des origines, Métiers, expériences, des personnes présentes sur ce forum est une richesse
Bonne continuation et merci encore pour ce retour d'expérience.
Cordialement
Bertrand
ISABEL, tu as grandement raison de le partager
Ca n'est pas nous qui allons nous en plaindre.
La diversité des origines, Métiers, expériences, des personnes présentes sur ce forum est une richesse
Bonne continuation et merci encore pour ce retour d'expérience.
Cordialement
Bertrand
-6 m2 en auto-vidange (Circuit Fermé, eau pure sans glycol), Capteurs sous polycarbonate 16 mm (toiture local)
-9 m2 WEISHAUPT et ballon 1000L circuit pressurisé glycolé ; 2 Solareg Genius II; Domoticz
Compte rendu de mon installation ici(1er champ)
-9 m2 WEISHAUPT et ballon 1000L circuit pressurisé glycolé ; 2 Solareg Genius II; Domoticz
Compte rendu de mon installation ici(1er champ)
- Goutailler
- Stagiaire Solaire

- Messages : 100
- Enregistré le : mar. sept. 15, 2009 15:35 pm
- Localisation : Sorgues vaucluse
- monteric
- Modérateur

- Messages : 1788
- Enregistré le : sam. sept. 10, 2011 17:50 pm
- Localisation : Chavilleu (01)
- Contact :
Bonjour,
Je ne connaissais pas et vraiment ca me parait une tres bonne idée, simple a mettre en oeuvre ... as tu un morceau de schema de construction des capteurs avec le ventilateur et des dimensions ?
Bon je rajoute ça a la rénovation de la maison. Si ça continu on va proposer a nos futurs voisins de leur distribuer le surplus de chaleur
Eric
Je ne connaissais pas et vraiment ca me parait une tres bonne idée, simple a mettre en oeuvre ... as tu un morceau de schema de construction des capteurs avec le ventilateur et des dimensions ?
Bon je rajoute ça a la rénovation de la maison. Si ça continu on va proposer a nos futurs voisins de leur distribuer le surplus de chaleur
Eric
20 m²thermique, Poele bouilleur, Chaudiere granulé, UVR16X2 + UVR610
Photovoltaïque : environ 1kWc, CADOE-OPP
Capteur à Air (façon Guy Isabel)
Suivre l'installation : http://chavillieu.cadoe.net
Association : http://ateliersvertssolaire.com
Photovoltaïque : environ 1kWc, CADOE-OPP
Capteur à Air (façon Guy Isabel)
Suivre l'installation : http://chavillieu.cadoe.net
Association : http://ateliersvertssolaire.com
- Goutailler
- Stagiaire Solaire

- Messages : 100
- Enregistré le : mar. sept. 15, 2009 15:35 pm
- Localisation : Sorgues vaucluse
- ISABEL
- Etudiant Solaire

- Messages : 259
- Enregistré le : sam. janv. 30, 2010 14:02 pm
- Localisation : VILLEDIEU la Blouère 49450
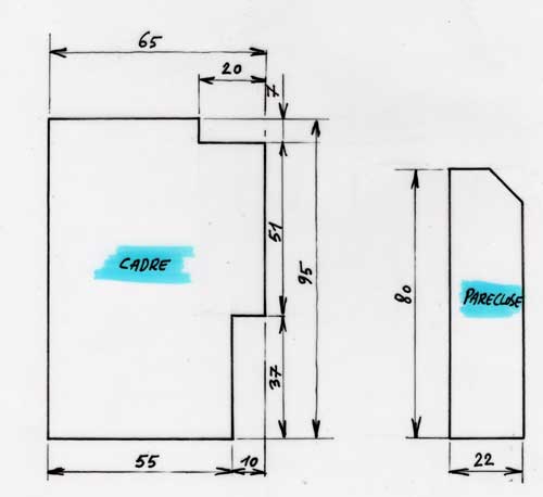
bonsoir , j'ai déjà parcouru les pages et photos de ton projet , et reste admiratif sur le travail accompli ! Pour ma part, les panneaux verticaux me semblent plus simples à gérer ( pas d'intervention sur la toiture ) et de plus pas de problème pour récupérer l'air chaud par thermocirculation . Un petit ventilateur de très faible puissance en partie basse suffit à activer le dispositif .( environ 100 m3/h , mais seulement 16 dB !!!) De plus , pas de problème d'échauffement estival excessif .J'avais déjà posté la vue en coupe du capteur , et précise ci -après les dimensions indicatives du profil , et le rappel du principe de ce capteur plan vertical. Cordialement. ISABEL
7 capteurs aérothermiques verticaux de 2 m2, absorbeurs en ardoises d'Anjou , clapets d'air chaud automatiques à vérins Vernet
