Ma pette Annonce perso (Visite de Chantier)

Parlez de vos expériences et donnez vos résultats concrets.

Modérateurs : ramses, Balajol, monteric, ametpierre, j2c, françois34, andrebayle

Avatar du membre
m_you49
Maitre Solaire
Maitre Solaire
Messages : 3635
Enregistré le : sam. déc. 31, 2005 12:36 pm
Localisation : Beaupréau-en-Mauges - 49

Message par m_you49 »

Salut[quote="AD 44"]Salut, j'ai pas pu m'en empecher :-D Désolé.[/quote]Je te rejoins, avec le toit en "casquette" côté sud ou une pergola côté ouest sur le plan initial pour les surchauffes estivales de fin d'aprem :cool:
@ +
Bon, faut pas qu'on casse la barraque à Michel
M.You - 49

Avatar du membre
AD 44
Maitre Solaire
Maitre Solaire
Messages : 1389
Enregistré le : mer. janv. 11, 2012 12:39 pm
Localisation : Divatte sur Loire

Message par AD 44 »

[quote="m_you49"] avec le toit en "casquette" côté sud ou une pergola côté ouest sur le plan initial pour les surchauffes estivales de fin d'aprem :cool: [/quote]

Absoluement!

[referp=86850;quote="m_you49"]Bon, faut pas qu'on casse la barraque à Michel[/quote]

D'autant que ma tite modif risque d'être un véritable casse-tête pour le dessin de la charpente :oops: .

Mais l'idée d'aller chercher le sud est primordiale par les temps qui courent!!!

sur l'esquisse initiale (une baie sud-ouest et une baie sud-est), la captation hivernale est moindre (mais jouable), mais surtout la gestion de la surchauffe estivale (notamment dans le 34) est plus délicate qu'une expo plein sud.

Mais bon comme le dit Michel, s'agit pas de casser la baraque non plus.

Si mon intervention était de trop, j'en suis navré.
Modifié en dernier par AD 44 le lun. déc. 17, 2012 22:35 pm, modifié 3 fois.
CESI 300L + radiateur - 4.5m² tinox
PV 930Wc auto-conso
Puits climatique + DF
(je ponce...donc...j'essuie)

Avatar du membre
Michel34
Newbie
Newbie
Messages : 33
Enregistré le : sam. juin 27, 2009 14:51 pm
Localisation : Marseillan Herault 34

Message par Michel34 »

Salut a tous , Pour la modif c'est trop tard ,le permis est depose et accepter , le fait est que vu la loi du littoral dans ma region ,les permis de construire sont tres dure a obtenir , moi comme la maison de la grand mere est prete a tomber (centenaire ,la maison) le P.C. n'as ete autorise qu'a refaire du neuf sur les fondations existantes .
pour c qui est de la terrasse cote Sud Est ,elle est couverte ,donc l'ete ouverture a l'ombre ,hiver soleil rentrant.
enfin j'espere .
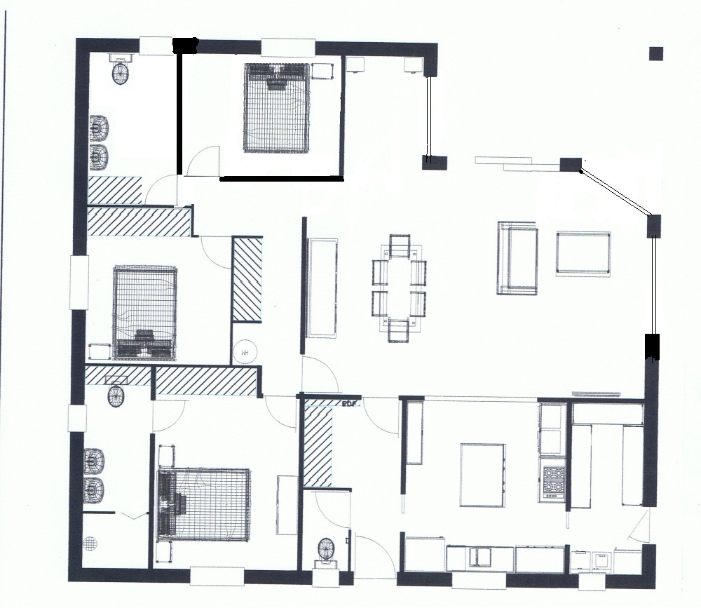
je met le plan meuble :
Cordialement , Michel 34

Avatar du membre
Michel34
Newbie
Newbie
Messages : 33
Enregistré le : sam. juin 27, 2009 14:51 pm
Localisation : Marseillan Herault 34

Message par Michel34 »

j'ai oublie le dessin :roll:
Fichiers joints
plan02.jpg
Cordialement , Michel 34

Avatar du membre
Ottiti
Maitre Solaire
Maitre Solaire
Messages : 3097
Enregistré le : sam. oct. 23, 2010 21:57 pm
Localisation : 57420 FEY

Message par Ottiti »

Salut

Les WC avec les lavabos ce n'est pas le pied :sad:
surtout en période de gastro :lol:
Tu as un petit local a coté de tes ensemble WC+lavabos, tu ne pourrais pas y mettre le WC ?

Avis éminemment perso bien sur :-D

A+
DrainBloc PAW + 13M2 + KER2 de 800 litres à production d'ECS Instantanée / KER1 de 800l & Chaudiere Prity MA18/ Poêle Hanook Supra / WKS 1kw + 2 x 200wc circuit dédié et 1/280wc injection secteur

Avatar du membre
Tarassac
Expert Solaire
Expert Solaire
Messages : 743
Enregistré le : mer. avr. 29, 2009 10:58 am
Localisation : Tarassac 34390

Message par Tarassac »

Bonjour à tous,

+1 j'ai les deux, et je trouve plus pratique le WC indépendant, pas pour des questions de pudeur, on en est très loin avec ma femme, mais bon, il y en a quand même un qui est indépendant :cool:

Hervé
Modifié en dernier par Tarassac le mar. déc. 18, 2012 17:21 pm, modifié 1 fois.

Avatar du membre
guy catalo
Stagiaire Solaire
Stagiaire Solaire
Messages : 107
Enregistré le : sam. juin 20, 2009 12:51 pm
Localisation : 11240-Aude - Fenouillet du razès
Contact :

Message par guy catalo »

Bonsoir
Dommage que tu ne mettes pas plus de vitrages, à Marseillan, avec 20 % de vitrages au sud par rapport à ta surface, tu peux couvrir environ 80% de tes besoins en chauffage pour une maison très basse énergie , et ce sera gratuit entièrement.
Tu ombrages un peu en été, surtout à l'ouest le soir et c'est gagné.
Salutations et peut être à bientôt.
Guy
28m2 GM tinox en 4 séries de 3 capteurs. ECS et Chauffage par le sol. 1 ballon 500l ECS; 2 ballons 500l chauffage; régulation Solareg Basic. en savoir plus sur : http://solaire11.unblog.fr/

Avatar du membre
Michel34
Newbie
Newbie
Messages : 33
Enregistré le : sam. juin 27, 2009 14:51 pm
Localisation : Marseillan Herault 34

Message par Michel34 »

[quote="Ottiti"]Salut

Les WC avec les lavabos ce n'est pas le pied :sad:
La SdB chambre parental ,je peux le dissimule avec une cloison coulissante a la rigueur (Faire un quart de tour au Wc.
c'et surtout d'eviter de traverser en courant la maison.
:roll:

surtout en période de gastro :lol:
On mange BIO dans le sud : :cool:

Tu as un petit local a coté de tes ensemble WC+lavabos, tu ne pourrais pas y mettre le WC ?
cette piece sera le bureau , ca ne vas pas le faire :sad:

Avis éminemment perso bien sur :-D
Tu sais ,quand les surfaces sont imposées , on jongle au plus simple et au mieux . meme pas le droit de faire un etage ,ni celui d'augmenter la surface au sol ,malgres le fait que je suis sur un terrain de 4000 M²,je suis beni car j'ai des collegues aux alentours qui on du se resigner a detruire .
meme les terrains d'agrement on leur a interdit les mobilehome , tu as le droit de poser des caravannes (du 1er Juin au 30 Septembre) en etat de se deplacer.Et ca ne rigole pas
:oops:

A+[/quote]
Cordialement , Michel 34

Avatar du membre
ramses
Administrateur
Administrateur
Messages : 2644
Enregistré le : mer. janv. 23, 2008 21:49 pm
Localisation : Belgique Prov Namur
Contact :

Message par ramses »

bonsoir a tous,

vous n'etes pas autorise a caver sous la maison ?

Bien a vous tous

Avatar du membre
Bernard (de Cagnes)
Maitre Solaire
Maitre Solaire
Messages : 879
Enregistré le : jeu. févr. 23, 2006 15:02 pm
Localisation : Fretterans 71

Message par Bernard (de Cagnes) »

Bonsoir,
nous en Bourgogne, on dirait "cuver" :ivre: :roll: :jesors:



pour être plus sérieux, j'aurais besoin des compositions des murs, plafonds, plancher, vitrages, portes en fait tout, avec les produits isolants, etc ...

pour connaitre les déperditions pour calculer, les longueurs de tube par, le pas, et tout, et tout, ........

la masse de la dalle pour le déphasage n'est pas un problème, au contraire, plus la dalle sera épaisse , plus tu auras d'inertie, donc tu va lisser les variations de températures.

voili, voilou ......
Amitiés ensoleillées. Bernard (Fretterans 71)

Avatar du membre
AD 44
Maitre Solaire
Maitre Solaire
Messages : 1389
Enregistré le : mer. janv. 11, 2012 12:39 pm
Localisation : Divatte sur Loire

Message par AD 44 »

j'essaie encore :lol:

Ca peut peut etre passer sur le PC, le tracé reste le même (bon mis à part la petite baie supplémentaire dans l'angle sud).
Fichiers joints
plan02.jpg
Modifié en dernier par AD 44 le mar. déc. 18, 2012 22:39 pm, modifié 1 fois.
CESI 300L + radiateur - 4.5m² tinox
PV 930Wc auto-conso
Puits climatique + DF
(je ponce...donc...j'essuie)

Avatar du membre
Ottiti
Maitre Solaire
Maitre Solaire
Messages : 3097
Enregistré le : sam. oct. 23, 2010 21:57 pm
Localisation : 57420 FEY

Message par Ottiti »

Salut

Effectivement quant je vois la masse de documents que j'ai du trouver ou créer pour faire ma terrasse et poser mes capteurs :-x
Je n'ose imaginer les tracas pour une construction dans la zone littorale :roll:
Mais bon il y a des excès avant maintenant c'est le retour du bâton.
Toi tes ainées ont du tous faire dans les normes à l’époque, les autres non :sad:
Maintenant ils n'ont qu'a s'en prendre à eux ou a leur notaire 8-)
Les WC dans un bureau c'est pas top :-D , si en plus la SdB est privative tu n'a qu'a t'inquiéter de ta moitié :lol:

Bonne continuation

A+
DrainBloc PAW + 13M2 + KER2 de 800 litres à production d'ECS Instantanée / KER1 de 800l & Chaudiere Prity MA18/ Poêle Hanook Supra / WKS 1kw + 2 x 200wc circuit dédié et 1/280wc injection secteur

Avatar du membre
lebritish
Maitre Solaire
Maitre Solaire
Messages : 2844
Enregistré le : sam. mai 24, 2008 23:18 pm
Localisation : Robiac (30)
Contact :

Message par lebritish »

[quote="Michel34"]
j'ai deja achete les materiaux de construction , je part avec des blocs bois/ciment isolé (ThermiBlocs pour ceux qui connaisse, bloc a monte comme un lego et ensuite couler le beton) [/quote]

Bjr Michel,

je ne connaissais pas ces thermiblocs mais je trouve la conception géniale.
Pour info tu aurais un prix au m² approximatif de ces blocs ?

Avatar du membre
Michel34
Newbie
Newbie
Messages : 33
Enregistré le : sam. juin 27, 2009 14:51 pm
Localisation : Marseillan Herault 34

Message par Michel34 »

Salut Bernard , pour t'expliquer brievement , je serais enferme dans un cube de beton ,je t'envoie une photo d'un bloc et tu vas tres certainement comprendre . Le mur de refend entre les chambre et la piece a vivre sera aussi en Beton banché pour redistribuer l'inertie accumulée dans le voile beton , bien sur si il y a des suggestions ,je suis preneur , je tombe la vieille maison la semaine prochaine.
pour ce qui est des vitrages ,porte fenetres en double vitrage et toutes les autres fenetres en triples vitrages ( j'ai reussi a negocier le triple au prix du double (societe Allemande) ).

@ leBritish ,je peux te donner les coordonnées du negociant avec lequel j'ai achete les materiaux , pour les thermiblocs il ne sont que 2 , 1 pour la partie Nord qui est base en Alsace et l'autre pour la partie Sud qui est basé a la Seyne/Mer .
http://bionergies.eu/materiaux/blocs-bois-ciment
Pour ma commande 160 M² avec le transport a mon domicile = 11500 € TTC
Fichiers joints
Thermobloc avec cote.jpg
Modifié en dernier par Michel34 le jeu. déc. 20, 2012 12:15 pm, modifié 2 fois.
Cordialement , Michel 34

Répondre

Retourner vers « Vos installations »