Ballon tampon dans une dépendance

Auto-construction, techniques, astuces,

Modérateurs : ramses, Balajol, monteric, ametpierre, j2c, françois34, p_bricoleur

stbebe
Newbie
Newbie
Messages : 27
Enregistré le : lun. août 14, 2006 22:18 pm
Localisation : 38

Message par stbebe »

[quote="Wlz"]Salut,
[referp=88157;quote="Samounet"]50 cm, ce n'est pas hors gel, mais à mon avis, le risque est très minime...[/quote]

50cm, et comme en plus les tuyaux sont isolés, à mon avis ça risque pas de geler![/quote]

Bonsoir,

J’avoue que j’ai un peu de mal a me faire une idée précise quant au risque de gel de ces tubes.
Certains, dans divers forums, parlent de 1m de profondeur..
Cordialement.

stbebe
Newbie
Newbie
Messages : 27
Enregistré le : lun. août 14, 2006 22:18 pm
Localisation : 38

Message par stbebe »

[quote="Samounet"]ah ben il reste un peu de place sur le toit du garage pour en mettre un supplémentaire tiens ! :-D

Tu penses pouvoir/vouloir augmenter l'angle de pose des capteurs ? Car 12 m2, c'est un apport qu'il faut vraiment optimiser pour le chauffage, mais en été, c'est de trop pour l'ECS, sauf à avoir le bon angle (ou s'en rapprocher).

Concernant le gel, si tu fonctionnes en glycol, ben tu t'en fous des 50 cm, ça ne pose strictement aucun problème.

A+++[/quote]

Bonsoir Samounet,

Effectivement, il y a de la place pour un capteur de plus, mais outre la maîtrise du coût, je voudrais aussi limiter la sur production en été.
Quant au gel, je voudrais pouvoir me passer de glycol.
Cordialement.

Avatar du membre
Samounet
Expert Solaire
Expert Solaire
Messages : 617
Enregistré le : sam. août 02, 2008 18:38 pm
Localisation : Saint Caprais (32)

Message par Samounet »

Bonjour,

Tu peux te passer de glycol pour la ligne qui va ramener les calories à la maison sans aucun souci à mon avis. Entre l'isolation du tube et son enterrement, additionné du fait que le gel, c'est souvent en hiver, moment où l'installation sera toujours en fonction. Chez moi, les tuyaux isolés sont dans un tube PVC de 160 mm, et en plus j'y ai mis de la mousse polyuréthane. Au niveau gel, il n'y avait pas trop de soucis, car ils sont à 80 cm de profondeur, mais c'est surtout pour minimiser les pertes en ligne. Elles sont vraiment très faibles, alors que ma ligne fait 25 mètres tout juste.

Concernant l'installation du garage, il y a essentiellement deux conditions à remplir pour fonctionner sans glycol. La première est d'utiliser des capteurs tubes sytle SUNRAIN, qui ont le collecteur complètement isolé, avec très peu d'eau dedans en fait. La deuxième est de t'assurer coûte que coûte que ton installation soit toujours opérationnelle, au moins pour ce qui est du captage, en prévoyant une alimentation de secours ou tout autre moyen qui permette de garantir le mouvement de l'eau.

Ensuite, pour la surface, 12 m2 en capteur plan est plus grand que 12 m2 en capteur tube, au niveau de la surface d'absorbeur.

Il y a possibilité de réaliser quelque chose de correct dans ton cas, mais il serait intéressant que tu aies d'autres avis.

As-tu jeté un oeil aux différents compte-rendus déjà ?

A+++

Avatar du membre
monteric
Modérateur
Modérateur
Messages : 1780
Enregistré le : sam. sept. 10, 2011 17:50 pm
Localisation : Chavilleu (01)
Contact :

Message par monteric »

Bonjour,

Je ne voudrais pas cassé le moral mais perso je suis moins optimiste quand au risque de gel. D'une 50cm ce n'est pas tres profond et de deux si c'est effectivement en hiver que tu vas faire circuler c'est aussi une période pendant laquelle tu risques de n'avoir aucun apport solaire pendant plusieurs jours donc tu ne vas pas avoir toujours besoin de faire circuler malheureusement.
Ou alors ca va etre effectivement pour réchauffer ta ligne et donc ton ballon :-?
Si j'ai bien lu tu es en Isere à 900m et il doit pas faire tout les jours tres chaud, un peu comme ici chez moi :roll: (en ce moment -8°) mais avec du soleil, ouf.
Il faut se rappeler de l'année dernière ou le froid a fait pas mal de dégats meme si heureusement ce n'est pas le cas tout les ans.

Voila mon avis perso, ca changerais la donne si il y avait un autre "producteur" qui réchauffait le ballon évidement ....

A+

Eric
20 m²thermique, Poele bouilleur, Chaudiere granulé, UVR16X2 + UVR610
Photovoltaïque : environ 1kWc, CADOE-OPP
Capteur à Air (façon Guy Isabel)

Suivre l'installation : http://chavillieu.cadoe.net

Association : http://ateliersvertssolaire.com

stbebe
Newbie
Newbie
Messages : 27
Enregistré le : lun. août 14, 2006 22:18 pm
Localisation : 38

Message par stbebe »

Bonsoir Samounet,

Merci pour les informations. Je vois que l’isolation que tu as mise en place est sans doute bien plus performante que celle de mes tubes Inox. Avec le recul, je me dis que j’aurais du investir plus sur cette liaison car ici, il gèle velu en hiver et parfois pendant une période assez longue comme l’an dernier. Mes craintes sur les risques de gel sont tenaces donc...
J’ai bien entendu parcouru pas mal de messages sur ce forum, ainsi que sur le DrainBack sur le web. Cela m’a permis de comprendre qu‘il faut bien préparer son affaire sinon les risques de galères sont élevés.
Merci encore,
Cordialement.

stbebe
Newbie
Newbie
Messages : 27
Enregistré le : lun. août 14, 2006 22:18 pm
Localisation : 38

Message par stbebe »

Bonsoir Eric,

Je partage tes craintes sur les risques de gel (il faisait -10 ce matin, puis, malgré un beau soleil dans la journée, la température n’est pas remontée au dessus de -5).
Maintenant, je me dis que tout est une affaire de compromis, le tout est de trouver celui le plus adapté aux contraintes.
Question sans doute naïve mais qu’entends-tu par «un autre producteur qui réchaufferait le ballon » ?
Cordialement.
Modifié en dernier par stbebe le sam. janv. 19, 2013 0:02 am, modifié 1 fois.

Avatar du membre
monteric
Modérateur
Modérateur
Messages : 1780
Enregistré le : sam. sept. 10, 2011 17:50 pm
Localisation : Chavilleu (01)
Contact :

Message par monteric »

Bonjour,

L'expression n'etait pas forcément terrible :roll:
J'entend par la un autre moyen de production de chaleur autre que le solaire.
C'est generalement ce que l'on a sur les ballons tampons avec un complement chaudiere par exemple .....

A+

Eric
20 m²thermique, Poele bouilleur, Chaudiere granulé, UVR16X2 + UVR610
Photovoltaïque : environ 1kWc, CADOE-OPP
Capteur à Air (façon Guy Isabel)

Suivre l'installation : http://chavillieu.cadoe.net

Association : http://ateliersvertssolaire.com

stbebe
Newbie
Newbie
Messages : 27
Enregistré le : lun. août 14, 2006 22:18 pm
Localisation : 38

Message par stbebe »

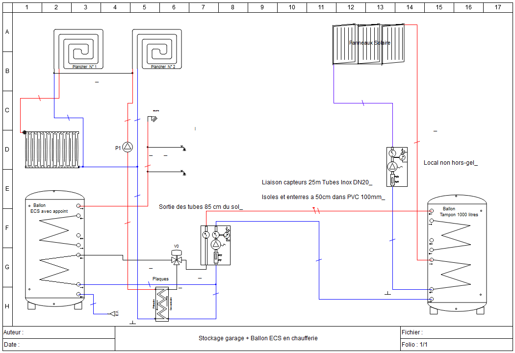
Bonjour,

Je reviens sur le sujet initial de ce fil de discussion, le bien fondé d’une solution avec un stockage distant dans un local non hors-gel. J’ai bien compris que la liaison était a risque (gel) et je vous soumet donc un schéma mettant en œuvre deux circuits avec glycol sous pression :
  • un premier circuit assure la charge du ballon tampon situé dans le garage qui n’est pas hors gel
    le deuxième circuit récupère les calories de ce ballon tampon et assure la charge du ballon ECS avec appoint électrique ainsi que la « relève » du retour des 2 circuits planchers chauffants et du circuit radiateurs vers la PAC (non représentée ici).
Le départ chaud de la PAC est de 35 degrés environ. Il n’y a pas de dispositif de mélange, les trois circuits de chauffage sont alimentés par un seul circulateur Wilo en vitesse 3 de 150W. Les cinq radiateurs de l’étage ont été dimensionnés en tenant compte de cette température de départ basse.
L’ensemble PAC et émetteurs parviennent a maintenir une température satisfaisante, y compris par périodes de grands froids, pourvu que celles-ci ne soient pas trop longues. Dans ces cas, comme l’hiver dernier, nous avons recours a un insert bois.
Je prévois de mettre en œuvre un ballon ECS avec appoint électrique intégré.

La vanne trois voies V0 permettra de donner priorité au chauffage si besoin est, et également de limiter la température injectée dans le circuit chauffage.
Je souhaiterais modifier le moins possible le circuit de chauffage PAC Existant, c’est la raison pour laquelle je m’oriente vers l’utilisation d’un échangeur a plaques.

Voilà, j’ai des gros doutes sur le rendement de cette solution, le tampon de 1000 litres dans ce local non hors gel me chagrine.
Je suis bien entendu preneur de vos bons conseils et je vous en remercie par avance.
Cordialement.
Fichiers joints
stockage_garage_+_ballon_ecs_en_chaufferie.png
Modifié en dernier par stbebe le dim. janv. 20, 2013 17:15 pm, modifié 2 fois.

yan24
Stagiaire Solaire
Stagiaire Solaire
Messages : 147
Enregistré le : mer. déc. 22, 2010 22:16 pm
Localisation : Perigueux 24

Message par yan24 »

Bonjour à tous
stbebe

Peut etre l'as tu déjà dit javascript:emoticon(':roll:')

quelle est la capacité de ton ballon en sous sol.
Peut etre est il suffisant si tu as une chape de PC assez épaisse capable de stocker les calories produites.

Yan
6 capteurs Tinox 2510, ballon 1000l ECS instantanée, PSD, appoint poêle bouilleur, regul MIII Millenium

Avatar du membre
monteric
Modérateur
Modérateur
Messages : 1780
Enregistré le : sam. sept. 10, 2011 17:50 pm
Localisation : Chavilleu (01)
Contact :

Message par monteric »

Bonsoir,

C'est la qu'il risque d'y avoir un souci, si tu puises directement dans le ballon exterieur qui fait 1000L et que tu veux faire du glycol bonjour la facture :oops:
Tu vas etre obliger pour récuperer la chaleur du ballon et utiliser le glycol de passer par un/des serpentins !

A+

Eric
20 m²thermique, Poele bouilleur, Chaudiere granulé, UVR16X2 + UVR610
Photovoltaïque : environ 1kWc, CADOE-OPP
Capteur à Air (façon Guy Isabel)

Suivre l'installation : http://chavillieu.cadoe.net

Association : http://ateliersvertssolaire.com

stbebe
Newbie
Newbie
Messages : 27
Enregistré le : lun. août 14, 2006 22:18 pm
Localisation : 38

Message par stbebe »

Bonsoir Yan,

[quote="yan24"]Bonjour à tous
stbebe

Peut etre l'as tu déjà dit javascript:emoticon(':roll:')

quelle est la capacité de ton ballon en sous sol.
Peut etre est il suffisant si tu as une chape de PC assez épaisse capable de stocker les calories produites.

Yan[/quote]

Je compte remplacer un cumulus de 150L par un ballon ECS de 300L avec un appoint électrique intégré (c’est en gros le max que je puisse faire si je veux pouvoir encore circuler dans la chaufferie).
Quant au plancher chauffant , c’est 6 cm de dalle + 20mm de revêtement (terre cuite), donc pas de quoi faire un vrai PSD si j’ai bien compris.
Ah, si c’était a refaire...
Cordialement.

stbebe
Newbie
Newbie
Messages : 27
Enregistré le : lun. août 14, 2006 22:18 pm
Localisation : 38

Message par stbebe »

Bonsoir Eric,

[quote="monteric"]Bonsoir,

C'est la qu'il risque d'y avoir un souci, si tu puises directement dans le ballon exterieur qui fait 1000L et que tu veux faire du glycol bonjour la facture :oops:
Tu vas etre obliger pour récuperer la chaleur du ballon et utiliser le glycol de passer par un/des serpentins !

A+

Eric[/quote]

En fait le ballon de 1000L ne contiendrait que de l'eau, seul l’échange entre les 2 ballons se ferait avec un circuit glycol, ce qui limite les coûts.
Il faudrait bien sûr que je soigne l ‘isolation de ce ballon si je veux éviter qu’il ne perde tout son intérêt, ou pire, qu’il gèle...

Avatar du membre
monteric
Modérateur
Modérateur
Messages : 1780
Enregistré le : sam. sept. 10, 2011 17:50 pm
Localisation : Chavilleu (01)
Contact :

Message par monteric »

Bonjour,

Ok mais sur ton schema on a l'impression que l'on puise directement dans le ballon ...

A+

Eric
20 m²thermique, Poele bouilleur, Chaudiere granulé, UVR16X2 + UVR610
Photovoltaïque : environ 1kWc, CADOE-OPP
Capteur à Air (façon Guy Isabel)

Suivre l'installation : http://chavillieu.cadoe.net

Association : http://ateliersvertssolaire.com

stbebe
Newbie
Newbie
Messages : 27
Enregistré le : lun. août 14, 2006 22:18 pm
Localisation : 38

Message par stbebe »

Bonsoir Eric,

[quote="monteric"]Bonjour,

Ok mais sur ton schema on a l'impression que l'on puise directement dans le ballon ...

A+

Eric[/quote]


Effectivement, ce n’est pas très clair sur le schéma sans doute parce que je ne connais pas bien les caractéristiques des ballons tampons.
Je me souviens avoir lu sur ce site que ce n’était pas une bonne idée que d’utiliser l’échangeur en partie haute, en général réservé au chauffage d’appoint.
J’avoue me perdre un peu sur les différents types d’échangeurs adaptés ou non a l’extraction depuis un ballon tampon.
Cordialement.
/joseph

Répondre

Retourner vers « Ballon de stockage chauffage et/ou ECS »