Bonjour à tous,
Après plus mûre réflexion voici comment je compte réaliser l'isolation de ma maison :
Le mur de refend au Nord séparant habitation et grange : isolé par "l'extérieur", c'est à dire côté grange
Pour les murs est, sud et ouest ce sera isolation par intérieur avec 10cm de ouate de cellulose insufflée.
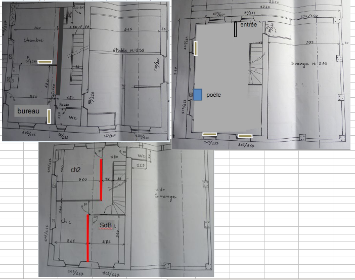
On fera également un retour d'enduit type chaux chanvre à l'intérieur pour limiter le pont thermique au niveau du refend. Ce qui donne a peu près le schéma suivant pour l'étage des chambres :

- Capture.JPG (51.37 Kio) Vu 4671 fois
Pour rappel, on passe aussi toutes les fenêtres en double vitrage Uw=1.3.
Et par rapport au projet initial, nous allons isoler sous toiture et donc inclure les combles dans le volume chauffé pour faire une chambre d'amis.
Mon bilan énergétique donne ça :

- Capture du 2017-12-10 15-20-45.png (55.93 Kio) Vu 4671 fois
NB : on mettra peut être 40cm sous toit au lieu de 30.
Pour chauffer ça, je reste sur l'idée d'un SSC avec poele à buches bouilleur + solaire avec ballon tampon. Et pour répartir la chaleur : radiateurs à l'étage du bas, dans le séjour et murs chauffants à l'étage des chambres :

- Capture du 2017-12-10 15-32-25.png (255.72 Kio) Vu 4671 fois
A ce niveau de reflexion, j'ai 2 questions :
- que conseillez vous pour isoler côté grange ce mur qui fait 8.5m de haut

en isolant non dérivé du pétrole ou à énergie grise faible si possible... ouate insufflée c'est possible ?
- sera-t-il possible de mettre les radiateurs et les murs chauffants sur un seul circuit de chauffage (sur le même circulateur) ? est-ce qu'il sera possible des les faire fonctionner à la même T°C ? (à condition de bien dimensionner bien sûr)
Merci à tous et bon dimanche !
Jonathan